О доме
Кол-во комнат: 3
Этажей в доме: 2
Площадь дома: 73.5 кв. м.
Материал стен: брус
Год постройки: 2022
Ремонт: косметический
Водоснабжение:центральное
Санузел: в доме
Отопление: электрическое
Отопление: электрическое
Канализация: станция биоочистки
Террраса и Веранда: есть
Электричество: есть
Интернет и ТВ: Wi-Fi, ТВ
Об Участке
Площадь: 7.5 сот
Категория земель: ИЖС
Инфраструктура: Магазин, аптека, детский сад, школа
Инфраструктура: аптека, магазин, школа
Транспортная доступность: Асфальтирования дорога, остановка общественного транспорта
Расстояние от КАД: 22 км
Цена
10 999 999 руб.
Способ продажи: свободное
Ипотека: Возможно
Фотографии


















План


Расположение
Ленинградская область., Гатчинский муниципальный округ, д. Монделево, 13Б
Московское шоссе, 22 км

Кратко
Гатчинском районе Ленинградской области по адресу: деревня Монделево, д.15-Б продается земельный участок 7,5 сот и жилой 2-этажный каркасный дом площадью 73,5 кв.м. 2022 года постройки.
Деревня — газифицирована. Магистральный газ — по границе участка.
Жилой дом расположен на берегу карьера. Среди фотографий объявления представлен вид из окна в летнее время на водоем.
Земли населенных пунктов. Вид разрешенного использования — для ведения личного подсобного хозяйства.
Дом — жилой. Построен в 2022 году русской бригадой с качественным контролем проводимых строительных работ.
Все необходимые документы по строительству дома и используемым материалам — предоставим.
Скважина, анаэробный септик. Отопление – электрокотел. Выделено 15 кВт.
Дом теплый. В нем на постоянной основе проживает собственница
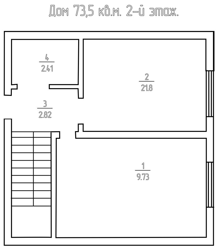
Метраж:
- Этаж;
- кухня -10 кв.см.,
- гостиная — 13,35 кв.м,
- тамбур — 2,5 кв.м.,
- совмещенный санузел — 4 кв.м.,
- крыльцо — 4,2 кв.м,
- веранда — 18 кв.м. Веранда полноценно утеплена. Используется как жилое помещение.
- Этаж
- холл — 2,65 кв.м .,
- комнаты — 9,75 + 12,4 кв .м.,
- совмещенный санузел — 2,4 кв.м.
Земельный участок выровнен, огорожен. Высажены садовые кустарники и деревья. Многочисленные туи вдоль забора. Хорошая подъездная дорога. Дороги регулярно чистят от снега.
Удобная транспортная доступность — автобусная остановка в шаговой доступности от дома.
2 железнодорожные станции – Кобралово и Антропшино. Общественный транспорт- до Павловска, Гатчины, Кобралово, станции метро Купчино и Московская. Маршруты — 478,527,529,545А, К545. Детский сад, школа, амбулатория-5 минут транспортом. Расположенный рядом город Коммунар имеет всю необходимую инфраструктуру- магазины, поликлиники, Мфц, банк, бассейн, детские образовательные и развлекательные учреждения.
Объект недвижимости принадлежит собственнице на основании договора купли продажи земельного участка от 2015 года, договора дарения доли участка и технического плана здания от 2022 года. Собственница в момент покупки участка и постройки дома была не в браке. Подтверждающие документы из архива ЗАГСа — предоставим. Полная стоимость в договоре! Обременений нет. Подходим под ипотеку, мат.капитал. cертификаты.






