О квартире
Кол-во комнат: 1
Общая площадь: 32.4 кв.м.
Жилая площадь: 17.4 кв.м
Площадь кухни: 6.3 кв.м
Этаж: 7 из 9
Высота потолков: 2.6 м.
Санузел: раздельный
Балкон или лоджия: нет
Окна: во двор
Ремонт: косметический
мебель: кухня, хранение одежды, спальное место
Цена
2 900 000 руб.
Способ продажи: свободное
Ипотека: Возможно
Фотографии
















План

Расположение
Ленинградская область, Гатчинский муниципальный округ, Коммунар, Садовая ул., 12

Кратко
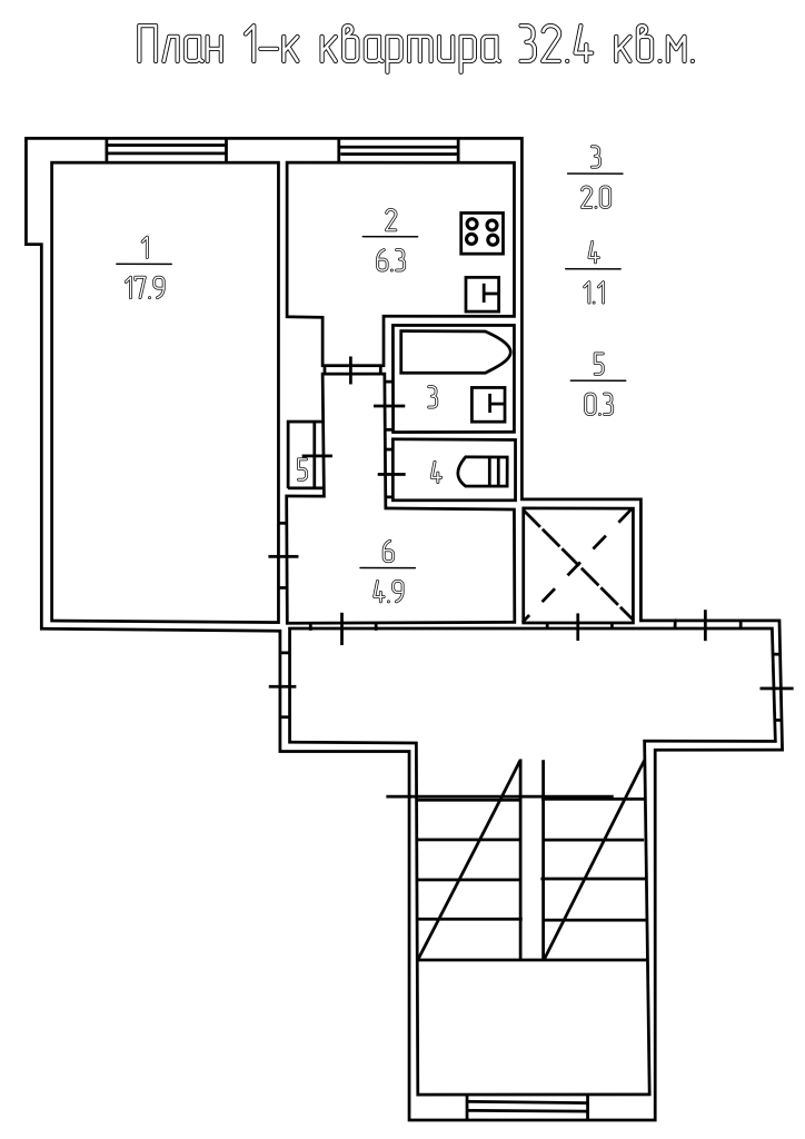
В Гатчинcком округe Лeнинградской oблаcти в г.Кoммунaр по aдpecу: ул. Caдoвaя дoм 12 на 7 этаже 9-этажного панельногo домa 1979 гoдa постpoйки продaетcя 1-комнaтнaя квapтиpа oбщей площaдью 32,4 кв.м. Плoщадь кoмнаты — 17,9 кв.м. , кухня — 6,3 кв.м., раздельныe ваннaя и туaлет, кopидоp 4,8 кв.м.
Удачная транспoртная лoкация. В шaговoй дoступности остановка общественного транспорта. . Ближайшие станции метро — Звездная, Купчино, Шушары. Обширная зеленая зона для прогулок — Яблоневый сад с оборудованными местами для отдыха, Стадион, Физкультурно-оздоровительный центр Олимп.
Рядом с домом расположены детские сады, школы, взрослая и детская поликлиника, строительные и продуктовые магазины.
Квартира изначально была куплена в 2019 году по договору купли продажи с использованием кредитных средств. Ипотека полностью выплачена. На погашение кредита был использован материнский капитал. Доли детям выделены. Встречная покупка подобрана. Внесен аванс.
Сделка по закону обязательно проходит в нотариальной форме. Наличие органа ОПЕКи и нотариуса в процедуре сделки гарантирует безопасность при покупки данного объекта. Полная стоимость в договоре купли продажи. Обременений нет.






